Технология производства
- Эскиз
- Проект
- Каркас
- Сэндвич
- Витраж
- Электричество
- Фасад
Эскиз и 3D модель
Все индивидуальные проекты начинаются с эскизирования. Так мы наглядно понимаем, что именно Вы хотите видеть в конечном продукте, и можем помочь Вам с выбором современного, и самое главное - функционального дизайна.
Проект
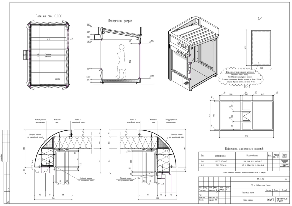
Для каждого нового здания мы делаем проект, просчитываем ветровую и снеговую нагрузку в климате, в котором будет эксплуатироваться павильон. Такой подход гарантирует достаточную жесткость конструкции и длительный срок эксплуатации.
Каркас
Каркас изготавливается из стальных труб, уголков и швеллеров различного сечения для достижения максимальной жесткости чтобы ни одно окно и дверь не были перекошены или разбиты при перевозке и эксплуатации.
Важно! Мы делаем полы из швеллера и уголка сеткой 75х75см для увеличения жесткости. В отличие от деревянных полов, стальные - не прогибаются, не скрипят и не гниют.
Сэндвич
Мы используем стеновые и кровельные сэндвич-панели из прессованной минеральной ваты толщиной 100мм класса пожарной опасности КМ0 (негорючие материалы), что освобождает вас от проблем с пожарной инспекцией. Поэтому в наших павильонах сохраняется комфортная температура даже в -40°C.
Витраж
Для формирования светопрозрачных конструкций мы используем витражи из металлопластикового и алюминиевого профиля. Все профили можно окрасить в любой цвет из каталога RAL. При необходимости устанавливаем рольставни и покрываем стекло бронирующей пленкой, которая значительно затрудняет несанкционированное проникновение в павильон. Для сохранения целостности конструкции витражей и дверей мы делаем стойки в металлокаркасе из стальных труб.
Электричество
Мы берем на себя полную электрификацию павильона. Это не только счетчик, розетки, выключатели и освещение, но и отопление ик-конвекторами, установка термостатов, кондиционера и освещение вывески.
Фасад
Чтобы придать современный вид нашим павильонам мы используем кассеты из алюминиевых композитных панелей, окрашенные стальные листы и натуральное дерево. Также мы встраиваем в фасад киоска рекламные носители

Из чего мы строим
- Уплотнительная лента
- Сэндвич-панель из прессованной минеральной ваты
- Плинтус
- Линолеум коммерческий
- Швеллер горячекатаный
- Влагостойкая плита osb
- Стальная труба окрашенная
- Стальной кожух окрашенный
- Влагостойкая финская фанера
- Паро- и влагоизоляция
- Минеральная вата
- Оцинкованная листовая сталь
Почему именно сэндвич панели из прессованной минеральной ваты?
Срок службы
Панели прослужат более 40 лет практически не теряя своих свойств. За ними не нужен специальный уход, их не нужно пропитывать специальными средствами, в них не живут насекомые и грызуны, на них не заводится плесень и грибок, они не дают усадку, не гниют и не трескаются в отличие от павильонов с деревянным каркасом.
Пожаробезопасно
Сталь и минеральная вата - абсолютно не горючие материалы. Огнестойкость подпадает под классификационную отметку К0, что освобождает вас от проблем с пожарной инспекцией. В отличие от решений с деревянным каркасом и внутренней обшивкой древесными плитами, сэндвич панели не воспламенятся даже если развести костер внутри помещения.
Жесткость
Помимо самого металлокаркаса, жесткость добавляют и панели. Поэтому мы гарантируем Вам абсолютную целостность конструкции при транспортировке и перемещении. Наши павильоны спроектированы так, чтобы выдерживать минимум 320кг/м² снеговой и 42кг/м² ветровой нагрузки.
Наши работы
- БЛОК-МОДУЛИ
- ГАРАЖИ
Полезные статьи
Как открыть киоск?
Как поставить торговый павильон? Инструкция по пунктам. Делай раз, два, три...
